Almadera is a collection of 6 new executive homes
Now under construction in San Jose, CA
Located in beautiful Almaden Valley
Home
Site Plan
Features
Find us
Contact
 

Plan 1 Craftsman - 5 bedroom, 4 1/2 baths, 3-car gargage - 3,756 sf
/td>

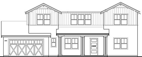
Plan 1 Farmhouse - 5 bedroom, 4 1/2 baths, 3-car gargage - 3,756 sf
 

Plan 2 Prairie - 5 bedroom, 4 1/2 baths, 3-car gargage - 3,597 sf
 

Plan 2 Farmhouse - 5 bedroom, 4 1/2 baths, 3-car gargage - 3,597 sf
 
This community of new homes is now under construction
These homes will be available for purchase in late 2027