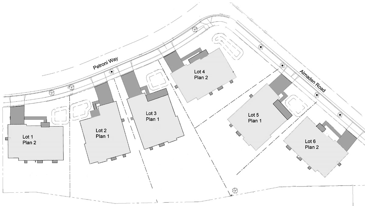
Almadera Site Plan - San Jose, CA